What: Conversion of public church to modern Community Centre.
Where: Copenhagen, Denmark.
When: 2015
By: Arcgency
Photo: Alastair Philip Wiper. Mathias Skafte Andersen
Where: Copenhagen, Denmark.
When: 2015
By: Arcgency
Photo: Alastair Philip Wiper. Mathias Skafte Andersen













ABSALON BEFORE THE TRANSFORMATION



DRAWINGS

Cross section - showing the large communal space and the new bridge.

Cross section - showing the new balcony and bridge.

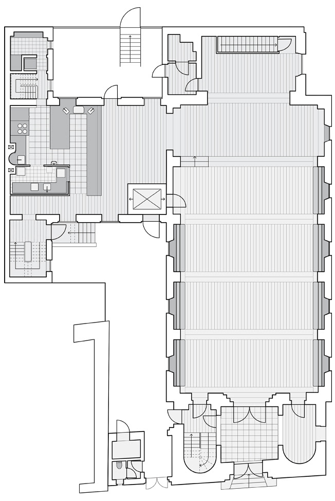
Ground floor plan.

Long section - Showing the large communal space, the raised plateau and the new balcony.